GL-10 GL-20系列过流继电器



用途
GL-10,GL-20系列反时限过流继电器(以下简称继电器)具有反时限特性,应用于电机,变压器等主设备以及输配电 系统的继电保护回路中。当主设备或输配电系统出现过负荷及短路故障时,该继电器能按预定的时限可靠动作或发出信号, 切除故障部分,保证主设备及输配电系统安全。
工作原理
继电器的工作原理是复合式的,由公用一个线圈的感应式和电磁式的两个元件组成。当继电器的线圈 通以交流电流时, 则在铁芯的遮蔽与未遮蔽部分产生两个具有一定相位差的磁通。此磁通与其在圆盘中感应的涡流相互作用,在圆盘上产生 一转矩。在20%-40%的动作电流整定值下,圆盘开始旋转。此时由于扇齿与蜗杆没有咬合,故继电器不动作。
当线圈中的电流增大至整定电流时,电磁力矩大于弹簧的反作用力矩框架转动,使扇齿与蜗杆咬合,扇齿上升。此时 继电器的动铁在扇齿顶杆的推动下,使导磁铁右边气隙减少,左边气隙增大。因而动铁被导磁铁吸合,使继电器触点动作。
当继电器线圈中的电流为整定值时,感应元件的动作时限与电流的平方成反比。随着电流的增加,导磁体饱合,动作 时限逐渐趋于定值。当线圈中的电流大于某一电流倍数时,电磁元件瞬时动作,因而继电器的动作时限具有反时限延时的 特性。
GL-11,12,21,22型继电器具有一付动合主触点(或一付动断主触点,需订制),既具有反时限功能,也具有瞬动功能。
GL-13,14,23,24型继电器具有一付动合主触点(或一付动断主触点,需订制)和一付由感应元件操作的延时信号触点, 其主触点吸有瞬动功能,无反时限功能,信号触点只有反时限功能,无瞬动功能。
GL-15,25型继电器具有一付强力过渡转换(先合后断)主触点,既具有反时限功能,也具有瞬动功能。
GL-16,26型继电器除具有一付强力过渡转换主触点外,还具有一付由感应元件操作的延时信号触点。强力过渡转换主 触点只具有瞬动功能,无反时限功能,信号触点只具有反时限功能,无瞬动功能。
GL-17型继电器具有一付强力过渡转换主触点和一付延时信号触点。强力过渡转换主触点既具有瞬动功能也具有反时 限功能,信号触点只具有反时限功能,无瞬动功能。
上述强力过渡转换主触点的突出功能是在继电器动作过程中可以确保CT二次回路不会开路。
技术要求
1.继电器的额定电流与整定范围见表1。
2.继电器的延时特性曲线见图1.
3.继电器线圈的长期允许电流为100%额定电流。
4.继电器的返回系数,对于GL-11,12,21,22型应不小于0.85,对于GL-13,14,15,16,17,23,24,25,26型应不小于0.8.
5.当电流为继电器的整定电流时,继电器的功率消耗不大于15VA.
6.触点性能
a .动合主触点功能
动合主触点在电压不大于250V时,能接通直流或交流5A,但是断开它所接通的电路,应当由其它触点担任(例如由开 关的辅助触点)
b.动断主触点性能
直流有感(
=5ms)回路,U≤250V,I≤0.5A,为50W;交流(cos=Φ0.4)回路;U≤250V,I≤2A,为250VA。
如果被控电路系由变流器供电并与继电器主触点并联,且当电流为4A时,其总阻抗不大于4Ω,则继电器的主触点在


电流不大于50A情况下能够将这个电路分流接通与分流断开。
c.过流转换主触点性能
继电器的过流转换主触点控制电路由变流器供电,且其阻抗值在电流为3.5A时不大于4.5Ω,当电流增至150A时, 继电器主触点能够将这个电路分流接通与分流断开。
d.信号触点性能
继电器的动合信号触点,在电压不大于250V时能接通或断开电流不大于0.2A的直流无感电路或电流不大于0.5A交
流电路。
7.热性能要求
当环境湿度为40℃时,继电器绕组线圈长期承受110%额定电流,其最高允许温升不超过65℃。
8.绝缘电阻不小于300MΩ。
9.介质强度 继电器所有电路对外壳和非带电金属部分,以及在电气上无联系的各电路之间的应能承受2kV(有效值)50Hz交流试验电 压,历时1min,无绝缘击穿或闪络现象。
10.寿命
GL-11-14,21-24型继电器机械寿命为5000次,电寿命为500次。
GL-15,16,17,25,26型继电器机械寿命为500次,电寿命为50次。
11.重量约为4kg。
调试方法
由于运输中的颠震或其它原因而使继电器的结构或性能改变时,建议按下述方法进行调整。
1.主触点间隙不小于2mm。为了防止触点抖动,动触点对于动合触点在动作前,对于动断触点在动作后,应与限制器 接触。
2.信号触点间隙不小于1.5mm。当信号触点刚刚闭合时,扇齿与蜗杆咬合应不少于2个齿。
3.过渡转换主触点
a.接触系统示意图中动断主触点压力不小于7g,用弯曲接触片5来达到(参见图2),断开后的触点间隙不小于2mm。
b.动合主触点间隙不小于1.5mm.

c.动作前,接触片3靠在止档上,弹簧片2与接触片3间的距离为0-1mm。
4.框架与转盘的轴向活量为0.1-0.2mm。继电器在工作位置及倒置180°的位置上,转盘不应与久磁铁及导磁体的极面 相碰。
5.扇齿与蜗杆的咬合量为扇齿高的1/3-2/3。
6.旋转倍流螺钉,改变动铁与导磁铁之间的气隙,即可调整瞬动电流。
7.调整感应片及弹簧,使动作电流返回电流与技术相同。

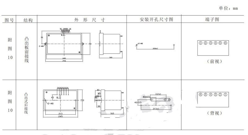
外形结构及安装开孔尺寸
本继电器采用固定安装式壳体,其外形结构及安装开孔尺寸详见附图10.
