XF-Z9800型开关柜综合测显装置

一、概述
XF-Z9800型开关柜综合测显装置适用于6KV至35KV户内各中置柜、手车柜、固定柜、环网柜等多种开关柜。除具有动态模拟指示、带电显示及闭锁、温湿度控制、断路器分合状态指示、储能指示、接地开关状态指示、断路器手车位置指示、分合闸指示、人体感应带电提示及柜内照明、触头无线测温、智能语音防误提示、远方/就地操作、远程通信等功能外,还具有电力综合参数测量功能,测量参数为:三相电流、三相电压、分相有功、合相有功、分相无功、合相无功、分相功率因数、合相功率因数,四象限有功无功电度等。
二、功能特点
■功能强大
用于6KV至35KV户内开关柜,适用于中置柜、手车柜、固定柜、环网柜等多种开关柜。不仅具有动态一次模拟图,带电显示及闭锁、温湿度控制、断路器分合状态指示、储能指示、接地开关状态指示、小车位置指示、分合闸指示、预分预合闪光指示、人体感应带电提示及柜内照明、触头无线测温、语音防误提示、远方/就地操作、远程通信等功能。还具有电力综合参数测量,如:三相电流、三相电压、分相有功、合相有功、分相无功、合相总无功、分相功率因数、合相功率因数、四象限有功无功电度等功能。
■智能化
采用单片机控制,与常规的开关柜状态显示器相比,增加了智能化功能。除可显示开关分合状态外,还可对误操作做出语音提示、判断断路器手车是处于试验位置与工作位置之间还是处于柜体之外并做出指示;多种电力参数测量、RS485远程通信接口和4-20mA模拟量输出、人体感应语音提示等功能。
■抗干扰能力强
采用独特的抗干扰技术。
■高可靠性
采用工业级电子元件,具有可靠性高、寿命长、抗干扰能力强等特点。发光模块采用进口发光芯片,户外高亮级,寿命为170000小时。
■寿命长
产品设计寿命30年。
■量身定做
根据用户不同需求,量身定作不同的功能组合。
■精致美观
外观设计新颖独特,做工精致美观,简化、美化了开关柜面板。
三、主要技术指标
1.电参数测量的准确度、显示位数及模式
参数 | 位数 | 显示最大数值及单位 | 各相显示符号 | 准度 |
|
|
| 1相 | 2相 | 3相 | 合相 |
|
相电压 | 4 | 9999 | V/kV | V1 | V2 | V3 | Ve0 | 0.2% |
线电压 | 4 | 9999 | V/kV | V12 | V23 | V31 | Ve |
|
电流 | 4 | 9999 | A/kA | I1 | I2 | I3 | Ie | 0.2 |
有功功率 | 4 | 9999 | W/kW/MW | P1 | P2 | P3 | P | 0.5% |
无功功率 | 4 | 9999 | var/kvar/Mvar | Q1 | Q2 | Q3 | Q | 0.5% |
视在功率 | 4 | 9999 | VA/kVA/MVA | S1 | S2 | S3 | S | 0.5% |
功率因数 | 4 | 1.000 |
| PF1 | PF2 | PF3 | PF | 0.5% |
有功电能 | 12 | 99999999999.9 | kWh |
|
|
| Wh | 1.0% |
无功电能 | 12 | 99999999999.9 | kvarh |
|
|
| Qh | 1.0% |
频率 | 4 | 40.00~70.00 | Hz | Hz | 0.2% |
温度 |
| 1℃ |
湿度 |
| 5% |
触点测温 |
| 1℃ |
2.温湿度测量
湿度测量范围:0~99%RH
温度测量范围:-20~+100℃
湿度测量精度:±5.0%RH
温度测量精度:±1℃
3.触头/电缆搭接头温度测量
温度测量范围:0~+125℃
温度测量精度:±1℃
4.输入
电压:5~500VAC 自动量程切换
电流:0~5AAC 自动量程切换
5.吸收功耗
电压:<0.6VA(500V)/0.2VA(100V)
电流:<0.1VA(5A)
6.过载能力
电压:2倍连续
电流:2倍额定连续,20倍1秒
7.测量系统接线方式:三相四线/三相三线,可通过键盘及串行口用软件设定选择。
8.可编程设定
编程模式:(密码)2000
测量系统选择:三相四线/三相三线
CT,PT变比:1~6000
显示内容:画面选择
通讯:波特率:1200/2400/4800/9600
校验位:无校验位
电能累加复位:(口令)5406
9.通讯
串行口:RS485(标准)
通讯规约:MODBUS-RTU
10.绝缘强度
对象:在输入/电源之间
引用标准:IEC688-1992
试验方法:AC2kV 1分钟 漏电流2mA
11.人体接近感应时间:≤3秒;人体接近语音提示时间:0~29秒
12.电能脉冲输出:3200/KWH
13.数据保存时间:≥10年
14.电磁兼容
(1)1.2/50-8/20us浪涌
电源:4kV(1.2×50μs)
I/O线:2kV
(2)快速瞬变脉冲串:电源:4kV,2.5kHz I/O线:2kV, 5kHz
(3)静电放电:接触放电:6kV 气隙放电:8kV
(4)射频电磁场:
10V/m中等强度的电磁辐射(如距离不少于1米的手提对讲机)
15.稳定性
温度范围:-25~+55℃ 温度影响:100ppm/℃
16.工作条件
温度:-25~+55℃
湿度:5~95% 无凝露
17.储藏条件
温度:-40~+85℃
湿度:5~95% 无凝露
18.工作电源
电源电压:AC 85~265V, DC100~280V
整机功耗:<7W(节能方式:<5W)
四、操作指南
1.盘面布局

2.符号定义
01:上试验位置指示 | 11:远方/就地转换开关 |
02:电量测试显示 | 12:上工作位置指示 |
03:加热指示 | 13:三相带电指示及闭锁及通讯指示 |
04:过热指示 | 14:储能指示 |
05:排风指示 | 15:语音提示 |
06:液晶显示界面 | 16:储能旋钮 |
07:断路器分指示 | 17:断路器合指示 |
08:按键部分 | 18:分/合闸转换开关 |
09:接地开关合指示 | 19:下试验位置指示 |
10:接地开关分指示 | 20:下工作位置指示 |
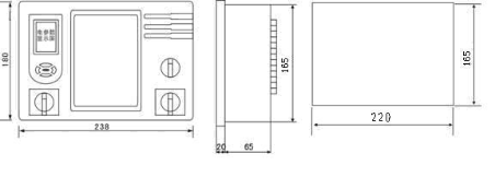
五、外形及安装

六.产品接线图
