您当前位置:电力猫 >> 产品中心 >> 高压元器件 >> 接地开关 >> 浏览文章
接地开关

JN15-40.5户内高压接地开关

发布时间:2023年08月16日人气:

JN15-40.5户内高压接地开关


JN15-40.5户内高压接地开关


产品概述

     JN15-40.5户内高压接地开关其性能符合GB1985-89《交流高压隔离开关和接地开关》及IEC129的要求,适用于12千伏及以下交流50Hz的电子系统中,可与各种型号高压开关柜配套使用,作为接地保护作用。

     设计先进、技术性能可靠;
     结构简单、安装调试方便;
     具有快速分、合能力。
使用环境条件
     海拔高度不超过1000m;
     周围空气湿度:上限+40℃;下限-10℃;
     允许在30℃时储运;
     地震强度不超过8度
     无易燃、易爆、严重粉尘、化学腐蚀及剧烈振动场所。

产品参数

JN15-40.5户内高压接地开关

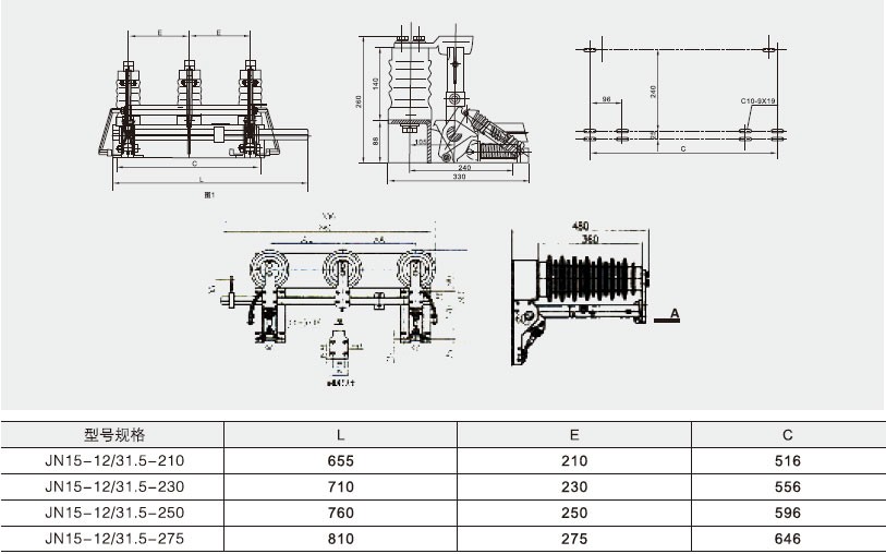
外形及安装尺寸

JN15-40.5户内高压接地开关


扫码微信咨询

Copyright © 2023 电力猫 版权所有(C) All Rights Reserved.  备案号:滇ICP备2022003995号-3     技术支持:网捷科技

展开 收缩

联系电力猫